欢迎来到- 无锡建昊环境科技有限公司 的官方网站, 邮箱: sales@jhhjkj.cn
加入收藏|联系我们 简体中文 ENGLISH
下载资料
产品类别
物位测量

物位测量

连续物位测量和点物位检测的定制解决方案

  • 选择独特的技术,制定好的解决方案
  • 通过相匹配的过程连接轻松集成
  • 经济型标准传感器,可灵活定制
  • 产品系列
  • 给您带来的益处
  • 应用领域
  • 技术
  • 产品系列

    • 卫生型温度传感器
      • 符合3A卫生标准以及FDA和EHEDG标准
      • 高效、快速的温度测量
      • 操作直观,易于现场安装
      • 完全适用于SIP
      • 耐受各种常见的CIP清洗剂

    • 静压
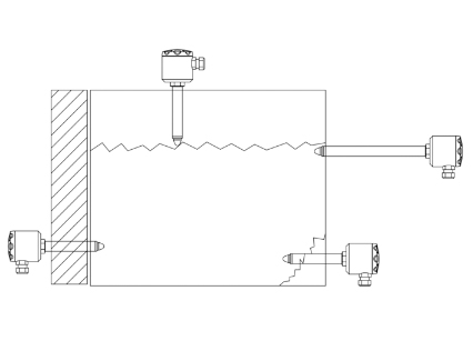
      • 储罐中的物位检测
      • 测量高度:0.5 m(50 mbar)
      • 出色的精度和长期稳定性
      • 工作温度范围:-40~200℃

    • 无浮子液位测量
      • 电位计式物位测量
      • 不局限于某种特定介质
      • 适合泡沫和粘性介质
      • 适合测量0.05 m的液位
      • 响应时间极短,适用于高动态过程

    • 超声波物位测量
      • 非接触式检测,不受材料影响
      • 不受污染影响
      • 甚至可检测超小型容器内的物位
      • 测量范围达6m
      • 微型设计

    • 电容式液位开关
      • 透过容器壁进行非接触式检测
      • 可接触腐蚀性介质
      • 安装方便
      • 坚固耐用

    • 光电式液位开关
      • 立管中介质的非接触式液位检测
      • 坚固的耐化学腐蚀型接触式传感器
      • 忽略直径为3mm的泡沫和气泡
  • 给您带来的益处
    • 集成快速,性价比高

      参数设置方便,可选配各种过程连接和转接头系统
    • 提高生产效率

      响应时间短,测量
    • 过程稳定性高,运行平稳

      独特的技术选择,轻松应对不同任务
      采用创新技术,即便在泡沫或粘性介质等苛刻的介质条件下也能获得可靠的测量结果
      出色的长期稳定性
    • 即便在苛刻环境下也能程度降低风险

      提供卫生型设计、耐化学腐蚀、抗机械冲击以及温度范围宽
  • 应用领域
    • /点物位检测
    • 连续物位测量
    • 检测颗粒状、粘性或液体介质
    • 非接触式或接触式检测
    • 溢出保护
    • 泄漏检测
    • 分离层检测
    • 泵空转保护
    • 透明立管和软管内液位测量
  • 技术
    频率扫描技术:
    集成在传感器探头中的电极与周围环境共同形成一个电容, 其电容值取决于介质的介电常数。 电容器和传感器电路中的电感线圈共同组成一个谐振电路。 基于测得的谐振频率和可调的开关动作范围,开关信号可以被触发。

    静压液位测量:
    约一半的过程自动化储罐液位测量是由压力传感器完成的。  这个过程既需要较小的压力测量范围,同时又要求高精度。 水或水性介质的每米高度静压只有约100 mbar。 介质密度必须已知,并据此进行补偿或校准,以实现的液位检测。 如果不是压力储罐,那么只需在储罐底部或靠近底部安装一个表压传感器就足矣。 如果是压力储罐,则必须将储罐中的头部压力计算在内。  此时,需要增加一个压力传感器,以完成计算。 随着测量高度降低和头部压力增大,要实现测量变得越来越困难,因为由二者之差所得到的静压值相对于传感器的量程越来越小。

    超声波物位测量:
    超声波传感器的测量原理是测量超声波信号的传播时间。 它们发射的高频声波会被待测介质表面反射。 介质形态可以是液体、颗粒或粉末。 超声波传感器能够清楚地识别光电传感器无法检测的透明物体或其它物体。
    在进行连续物位测量时,超声波传感器会测量其与介质表面之间的距离,测量值以电压信号形式输出。 输出电流或输出电压与料位或介质表面与传感器之间的距离成正比。

    电容式物位测量:
    电容式传感器的工作原理与开放式电容器基本相同: 测量电极与接地电极之间形成一个电场, 如果介电常数εr大于空气介电常数的物质进入电场,那么电场的电容会增加,具体取决于该物质的εr。 传感器中的电子模块可测量出这一电容增加,所产生的信号在后续信号处理期间进行调节,并在对应幅值处触发输出开关动作。

    光电液位测量:
    接触式液位监测和泄漏检测传感器: 光电液位传感器的工作原理是基于全反射临界角度的变化,这取决于传感器探头所接触的介质是水还是空气。 如果传感器探头接触的是液体,光束经折射后进入液体,传感器输出的开关状态发生改变。 液体介质可能具有导电性,或混浊、或透明。 泄漏检测传感器的工作原理与之相同。
    非接触式液位监测传感器: 安装在透明软管/立管上的液位传感器遵循同样的工作原理。 例如,FFDK 16亦利用液体的折射性质: 在没有液体的情况下,发射光会直接到达接收器; 如果液体进入检测范围内,一部分光线发生折射,这样就只有较少的光线到达接收器。 据此,传感器就可以分析光强的变化。 光纤传感器FSL 500C6Y00的工作原理则恰好相反: 在没有液体的情况下,不会有光线到达接收器。 只有在液体进入传感器的检测范围时,部分发射光才会经折射后到达接收器, 而接收器可以分析光强的变化。 监测范围约为5mm的阵列设计的优势是泡沫和小气泡造成的干扰可以被强大的光纤传感器忽略。

    电位计式物位测量:
    电位计是一种基于比例式工作原理的角度传感器。 通过这种数学关系,数模转换器可以独立输出数字信号,且不受驱动电流UP和电阻值RP的影响。
    这种原理采用由无电势电压源UP供电的导电管,以实现虚拟滑动方式。 沿着管道的电流会产生线性电压降。 形成滑动的介质中,在导电罐壁或辅助电极的等电位表面会形成相应的偶极子场。 RM1和RM2这两个等效替代电阻会形成1:1分压器。 储罐或辅助电极与电压源的一极之间的非对称电压形成测量信号UM,该信号与液位呈线性关系,同基于管道长度的电压源UP的半个幅值呈比例关系。

    • 物位传感器的功能
      堡盟提供多种物位测量技术:
      频率扫描技术
      静压液位测量
      超声波物位测量
      电容式物位测量
      光电液位测量
      电位计式物位测量
      您可以根据具体应用选择适合的技术。
    • 物位传感器的安装
      欢迎了解如何正确安装带滑动连接的CleverLevel物位开关以及相关的注意事项。

    • IO-Link in process automation
      Data is the most important basis for process and product optimization. Thanks to the digital IO-Link interface, valuable additional data can be made accessible. Learn more about how IO-Link can help you in process automation to optimize processes and make them more efficient.
COPYRIGHT © 2020 无锡建昊环境科技有限公司 版权归公司所有,ALL RESERVED.
联系我们站点索引隐私政策法律声明